Описание
Характеристики
Отзывы
Описание
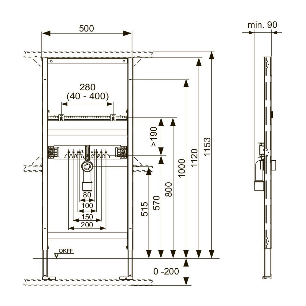
Для крепления на профиле TECEprofil или для монтажа в металлических или деревянных каркасных стенах, перед стеной или в качестве углового модуля.
Характеристики
Бренд
TECE
Ключевые слова
TECEprofil,
Цвет товара
коричнево-красный
Гарантия
10 лет
Страна-изготовитель
Германия
Комплектация
- Независимая монтажная рама, порошковое покрытие
- Две крепежные шпильки M 10, с регулировкой по горизонтали и вертикали
- Звукоизолированные монтажные пластины для крепления настенных уголков
- Соединительный отвод DN 40/50 с резиновой муфтой, NW 30/50 (также используется в качестве уплотнения) с защитной заглушка
- Дополнительно приобретается:
- Уголок с настенным креплением TECEflex 16 x 1/2", TECE 1/2" x 1/2", TECElogo 16 x 1/2" или TECElogo 20 x 1/2"
- Крепежные элементы для монтажа отдельных блоков перед стеной, в углах или в деревянных каркасных конструкциях
- Монтажная пластина для сантехнической арматуры (арт. 9020041)
Количество заводских упаковок
1
ТН ВЭД коды ЕАЭС
3922900000 - Прочие ванны, души, раковины, биде, унитазы, сиденья и крышки для них, бачки сливные и аналогичные санитарно-технические изделия, из пластмасс
Вес с упаковкой, г
7000
Назначение инсталляции
Для раковин
Материал_6383
Сталь
Особенности
Регулировка по высоте
Отзывы
Отзывов еще никто не оставлял
